
Compact met aanvullende ruimte voor zorg
Zorgwoning Wetering
Niet alleen de bewoner heeft ruimte nodig, ook de mantelzorger. De Wetering is gemaakt om zowel compact voor plaatsing te zijn, terwijl het een zeer ruim model is op de plekken die belangrijk zijn voor zorg. Zo is de slaapkamer maar liefst 14m² met een direct aangrenzende badkamer van 5m² waardoor het helpen bij lichamelijke verzorging gemakkelijker is.
Doordacht design voor zorg en comfort
De Wetering is specifiek ontwikkeld als hoogwaardige zorgwoning waarbij elke centimeter bijdraagt aan de zelfredzaamheid van de bewoner en het gemak van de mantelzorger. Door de slimme, rechthoekige opzet is de woning eenvoudig te plaatsen op vrijwel elk perceel, zonder concessies te doen aan de interne bewegingsruimte. De grote raampartijen aan de voorzijde zorgen voor een open verbinding met de omgeving, wat bijdraagt aan een gezonde en lichte leefomgeving, ook als de mobiliteit afneemt.
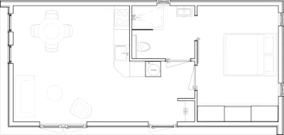
Maximale ruimte in de zorgkern
In de Wetering zijn de slaapkamer en badkamer de belangrijkste vertrekken. Met een riante slaapkamer van 14m² is er meer dan voldoende plek voor een hoog-laagbed en medische hulpmiddelen, terwijl er aan weerszijden van het bed loopruimte overblijft. De direct aangrenzende badkamer van 5m² is drempelloos en zo ingedeeld dat een mantelzorger of zorgprofessional alle ruimte heeft om fysieke ondersteuning te bieden. Deze logische en ruime zorgkern vormt de basis voor een veilige woonervaring.
Efficiënt en sociaal wonen
Naast de uitgebreide zorgfaciliteiten biedt de Wetering een sfeervolle woonkamer met open keuken van 20m². Deze ruimte is efficiënt ingericht, zodat alles binnen handbereik is en er toch een volwaardig sociaal hart ontstaat om gasten te ontvangen. De centrale entree fungeert als een rustige sluis tussen de leefruimte en de zorgvleugel, waardoor privacy gewaarborgd blijft. Zo biedt de Wetering de perfecte balans tussen professionele zorgmogelijkheden en een warm, eigen thuis.
Bekijk plattegrond
U kan de plattegrond direct bekijken of een papieren exemplaar op A3 formaat thuis ontvangen.
Thuis ontvangen













