
Ruimte, comfort & rust
Zorgwoning Rijn
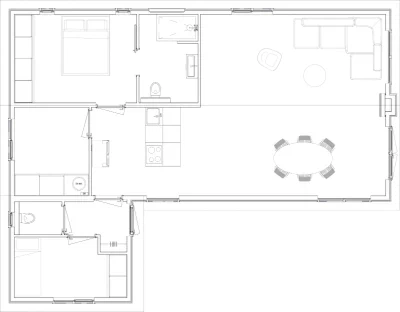
De Rijn is ontworpen met een sociaal en comfortabel karakter. Met het kookeiland in de open keuken bent u onderdeel van de gezelligheid in de woonkamer, die samen maar liefst 50m² groot zijn. Ook is het eenvoudig een gast te ontvangen dankzij de aanvullende slaapkamer en separaat toilet. Dankzij de grote berging achter de keuken, kan u gemakkelijk bij uw opslag en dient tevens als wasruimte.
Imposant met een robuust karakter
De Rijn onderscheidt zich direct door zijn indrukwekkende verschijning. De volledige buitenzijde is bekleed met hoogwaardige steenstrips, wat de woning een solide en tijdloze uitstraling geeft die niet onderdoet voor traditionele villabouw. Deze gevelafwerking is niet alleen onderhoudsarm, maar zorgt in combinatie met de strakke lijnen van het ontwerp voor een statig geheel dat in elke omgeving een blikvanger is.
Het sociale middelpunt: de royale leefkeuken
Met een gecombineerd oppervlak van maar liefst 50m² vormt de woonkamer en open keuken het kloppende hart van de woning. Het kookeiland is strategisch geplaatst, zodat u tijdens het koken altijd in contact blijft met uw gezelschap in de zithoek of aan de eettafel. De dubbele openslaande deuren naar het terras versterken het gevoel van vrijheid en maken van deze ruimte een uitnodigende plek. In de avond kan u gezellig genieten van de haard in uw woonkamer.
Luxe en gastvrijheid zonder compromissen
Als ons grootste model biedt de Rijn de luxe van een doordachte indeling met drie volwaardige kamers. De hoofdslaapkamer van 13m² biedt directe toegang tot de ruime badkamer, terwijl de separate logeerkamer van 7m² ideaal is voor het ontvangen van gasten of het inrichten van een rustig thuiskantoor. Praktisch gemak is overal terug te vinden: van het aanvullende toilet bij de entree tot de riante inpandige berging die direct vanuit de keuken bereikbaar is.
Bekijk plattegrond
U kan de plattegrond direct bekijken of een papieren exemplaar op A3 formaat thuis ontvangen.
Thuis ontvangen













