
Modern wonen met een groen dak
Zorgwoning Berkel
Geniet van de perfecte balans tussen modern comfort en een landelijke uitstraling met de mantelzorgwoning Berkel. Met een royaal woonoppervlak van maar liefst 90m² biedt dit model u alle ruimte om zelfstandig en stijlvol te wonen. Dankzij de extra kamer en praktische berging is de woning flexibel in te delen voor elke levensfase.
Ecologisch en duurzaam ontwerp
Wat direct in het oog springt, is het prachtige groene dak. Dit ecologische sedumdak is niet alleen een lust voor het oog, maar biedt ook praktische voordelen: het zorgt voor uitstekende thermische isolatie, dempt geluid en bevordert de lokale biodiversiteit. Zo woont u letterlijk in harmonie met de natuur.
Hoogwaardige moderne materialen
In dit model gaan esthetiek en duurzaamheid hand in hand. Door het gebruik van moderne materialen geniet u van de warme uitstraling van hout, zonder de intensieve zorg die daarbij komt kijken. De strakke antracietkleurige kozijnen en de grote raampartijen geven de woning een eigentijds karakter en zorgen voor een overvloed aan natuurlijk licht in de leefruimte.
Riant wonen op 90m²
Met een oppervlakte van 90m² is de Berkel een van onze meest ruime modellen. Deze opzet biedt u een riante woonkamer met open keuken, een royale slaapkamer en een moderne badkamer. Dankzij de de overdekte veranda over de hele lengte van de woning vloeien binnen en buiten naadloos in elkaar over.
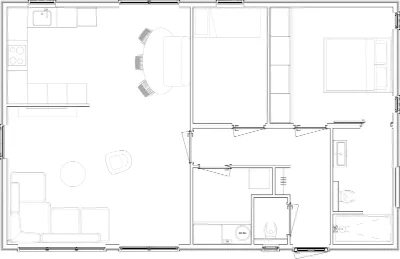
Bekijk plattegrond
U kan de plattegrond direct bekijken of een papieren exemplaar op A3 formaat thuis ontvangen.
Thuis ontvangen















