
Modern uiterlijk met ouderwetse gezelligheid
Zorgwoning Amstel
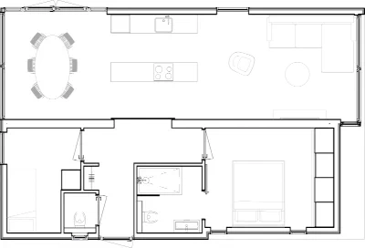
De woning is een prachtig ontwerp wat eenvoudige geometrie vormen afwisselt met speels materiaalgebruik. De eye-catcher is het centrale kookeiland in de imposante 36m² kamer, die de ruimte verdeelt in een eet- en zitgedeelte zonder muren. Door de woonruimte te scheiden van de slaapkamers, kan de bewoner of logee een rustmoment pakken zonder hinder.
Natuurlijk licht in elke ruimte
De Amstel valt op door een krachtig samenspel van geometrische lijnen en een speelse mix van materialen. Het ontwerp straalt moderne rust uit, waarbij de gevelbekleding de woning een warm en eigentijds karakter geeft. Dankzij de grote glaspartijen aan de voor- en achterzijde wordt de natuurlijke omgeving onderdeel van het interieur.
Een imposant sociaal hart
Het middelpunt van de Amstel is de riante leefruimte van maar liefst 36m². De eyecatcher is hier het centrale kookeiland, dat op natuurlijke wijze de ruimte verdeelt in een eet- en zitgedeelte zonder de openheid te verliezen. Deze kolomvrije opzet zorgt voor een indrukwekkend ruimtelijk effect en maakt de kamer tot de ideale plek voor gezellige avonden. Of u nu aan het koken bent of ontspant in de zithoek, u blijft altijd verbonden met de rest van het huis.
Doordachte scheiding van rust en leven
In de Amstel is privacy gewaarborgd door een slimme zonering: het leefgedeelte en de slaapvertrekken zijn strikt van elkaar gescheiden door een centrale hal. De hoofdslaapkamer van 12m² biedt een serene plek voor de bewoner, terwijl de separate logeerkamer van 7m² zorgt dat gasten hun eigen plek hebben. Met een moderne badkamer, een separaat toilet en een praktische inpandige berging van 5m2 biedt de Amstel alle faciliteiten voor luxe en comfortabel wonen.
Bekijk plattegrond
U kan de plattegrond direct bekijken of een papieren exemplaar op A3 formaat thuis ontvangen.
Thuis ontvangen















